君子好球 | 成就绿茵场上的追风少年
时下,球迷们的热议话题估计非英格兰足球超级联赛莫属,英超是“欧洲足球五大联赛”之一,其余分别是西班牙足球甲级联赛、意大利足球甲级联赛、德国足球甲级联赛和法国足球甲级联赛。这些联赛在欧洲极具影响力,也引领着世界足球事业的发展。青少年足球人才的选拔与培养,有助于提升国内足球水平。德国足球协会(DFB)在法兰克福建造了一座崭新的足球学院。来自Nova Apparate GmbH的AHU和依必安派特的离心风机为这座人才基地打造宜人的舒适气候。
在经过两个小时的密集训练后,德国足协的年轻足球运动员们满脸通红地前往更衣室,随后进到放映室里进行战术训练。他们必须尽快适应环境,迅速降温,然后才能很好地分析对手。
迅速降温需要良好的团队环境,适宜的室内气候也很重要。毕竟,冷静的头脑和充足的氧气是讨论战术的最佳选择。庆幸的是,德国足协在其全新的足球学院安装了由Nova Apparate GmbH公司生产的通风系统。它们为整个建筑提供充足的新鲜空气,并调节温/湿度。学院共安装有22个AHU,分布在各个地方,从会议室、健身房、办公室和更衣室,到新闻发布会大厅和设有33个房间的运动员宿舍。
用水自然冷却
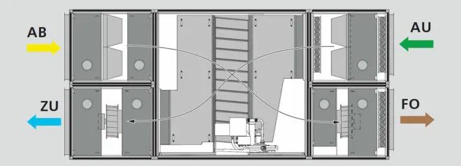
AHU的特殊之处在于采用了Ka2O技术:一种基于间接蒸发冷却的方法。使用过的空气从内部吸入,并用小喷嘴淋湿。水蒸发并从废气中提取热量。在Ka2O逆流热交换器中,吸入的外部热空气由冷废气冷却,两者互不混合。最后,外部空气经过过滤,进入内部。

集成在AHU中的Ka2O技术[AB:废气,ZU:供气,AU:外部空气,FO:排出空气]
与传统的制冷机组相比,AHU无需化学制冷剂或机械冷却,这使得蒸发冷却非常环保。除了水泵和风机需要消耗一些水和电力以外,几乎无需其他物质。因此,德国足协学院的AHU具有很高的能源效率,几乎不会产生二氧化碳。他们非常重视这一点,越来越多的公司正在使用Ka2O技术来减少其碳足迹。
蒸发冷却的不足之处是其有限的冷却水平,最高为12开尔文。然而,Nova已通过创新性的Ka2O技术解决了这一难题。他们将许多小型热交换器以模块化形式组合在一起,来替代传统的单个大型热交换器。此外,房间内吸入废气的模块表面直接用水喷洒,这样,可在多个模块表面上产生连续的水膜,外部空气产生的整体冷却效果可达20开尔文。德国技术服务机构TÜV Süd已对此进行认证。

建设中的位于法兰克福的德国足协学院,采用Ka2O技术的AHU。
那么,冷却后的空气是如何进入内部的呢?这就是依必安派特RadiPac离心风机发挥作用的地方。它的高性能叶轮非常坚固、振动小,可承受高背压。RadiPac还配备了绿色科技EC电机,它们具有效率高和低功耗的特点。因此,RadiPac风机非常适合用于Nova的AHU系统。首先,它能克服热交换产生的高背压。其次,它非常契合Ka2O技术背后的环保冷却理念。
告别气溶胶
除了能源效率和二氧化碳排放外,新冠疫情也是一个重要的考量因素。毕竟,通风不良或不当会增加感染的风险。NOVA的AHU在这方面表现出色,因为它们只使用来自外部的新鲜空气,这意味着室内空气会持续被稀释,气溶胶会显著减少。在疫情大流行之前,Nova就已经达到了先进的水平,这也是德国足协采用这一系统的一个重要因素。
足球学院为其428名员工提供了一个理想、安全的工作环境。在经历了又热又累的训练后,年轻的德国足球运动员们可以更快地降温,进入良好的状态。
依必安派特RadiPac
离心风机优势一览
·整体静压效率可达68%
·空气动力学优化的叶轮使其运行安静而高效
·带外壳或支架的理想型即插即用系统
·模拟真实环境进行测试,例如在空调及通风设备中对风机进行测试


